matthias richter architekten bda
 > objekt  ... stadt  ... profil  ... kontakt
         
 
         
"Bücherdom mit Geheimtreppe"
Erweiterung Einfamilienhaus, Hagen

Gauselmann Richter Architekten
Ein bestehendes Wohnhaus wird um eine 2geschossige Bibliothe erweitert.
Die Galerie im Obergeschoß des Anbaus ist mit dem Bestand durch einen leichten Gitterroststeg im Luftraum der Diele verknüpft.
         
 
         
Die interne vertikale Erschließung der Bibliothek erfolgt über eine "Geheimtreppe" hinter dem 2geschossigen Bücherregal.
Das Oberlicht dieses Treppenraumes erzeugt eine Hintergrundbeleuchtung des Regals, das in diesem Bereich beidseitig nutzbar ist.
         
         
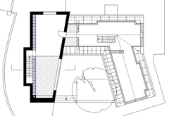
Der kubische zweigeschossige Anbau ergänzt das bestehende Ensemble zu einem U-förmigen Eingangshof.
Die Schräge der hofseitigen Außenwand greift die bestehende Geometrie auf und erzeugt im Innenraum der Bibliothek und im Außenraum des Hofes eine künstliche Perspektive.
Die Bibliothek öffnet sich zum Hof durch ein zweigeschossiges, quadratisches Fenster mit Ausblick auf einen alten Apfelbaum.

Materialien und Farben: weißer Kalkputz, schwarzer Schiefer, Ahornholz, grau lackierter Stahl.