matthias richter architekten bda
 ... objekt > stadt  ... profil  ... kontakt
         
         
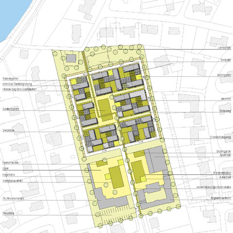
 > MEM - Siedlung in der Stadt > Lageplan